764 m² Grundstück mit 2-Fam.-Haus im Herzen von Weinstadt-Endersbach
Beschreibung:
Willkommen in Weinstadt-Endersbach – einer der begehrtesten Lagen der Region.Wir präsentieren Ihnen ein nenovierungsbedürftiges Zweifamilienhaus aus dem Jahr 1865, das durch seine zentrale Lage und die Potenziale zur individuellen Gestaltung oder für einen Neubau besticht.
Das Haus wurde 1965 und 1976 umgebaut.
Es befindet sich auf einem 764 m² großen Grundstück, das auch zahlreiche Möglichkeiten für moderne Bauprojekte eröffnet. Die bestehende Wohnfläche der beiden Wohnungen von 191 m² umfasst 9 Zimmer, darunter fünf Schlafzimmer, zwei Badezimmer, zwei Küchen und ein Gäste-WC.
Das Haus bietet Ihnen die einmalige Gelegenheit, Ihre Vision von einem Traumhaus in einer der begehrtesten Lagen in Weinstadt von Grund auf zu realisieren. Ob Sie einen Anbau, einen umfassenden Umbau oder sogar einen vollständigen Neubau planen – dieser Standort bietet die ideale Grundlage dafür - sowohl zur Selbstnutzung als auch als attraktive Kapitalanlage!
Lagebeschreibung:
In zentralen Lage im Herzen von Weinstadt-Endersbach. Dieser privilegierte Standort bietet eine hervorragende Infrastruktur mit allen notwendigen Einrichtungen des täglichen Bedarfs in unmittelbarer Nähe. Einkaufsmöglichkeiten, Cafés und Restaurants sind bequem zu Fuß erreichbar, wodurch der Alltag besonders komfortabel gestaltet wird.Für Familien mit Kindern bietet die Umgebung eine ausgezeichnete Bildungsinfrastruktur. Ein Kindergarten ist nur 0,4 km entfernt, während Grundschule, Realschule und Gymnasium jeweils lediglich 0,8 km vom Haus entfernt liegen. Diese kurzen Distanzen gewährleisten einen unkomplizierten Zugang zu Bildungseinrichtungen.
Darüber hinaus profitieren die Bewohner von Weinstadt-Endersbach von einer guten Verkehrsverbindung. Öffentliche Verkehrsmittel und nahegelegene Verkehrsstraßen ermöglichen einen schnellen Zugang zu umliegenden Städten und machen die Lage zu einem idealen Ausgangspunkt für Pendler und Familien gleichermaßen. Diese Kombination aus hervorragender Infrastruktur, Bildungsnähe und öffentlicher Verkehrsanbindung macht das Zweifamilienhaus zu einem attraktiven Wohnobjekt in einer der begehrtesten Regionen von Weinstadt.
Bushaltestelle direkt vor dem Haus. Zur S-Bahn ca. 2 Minuten zu Fuß.
Zur Bundesstraße B 29 ca. 2 Minuten mit dem Auto.
Ausstattung:
Energieausweis:
- A+
- A
- B
- C
- D
- E
- F
- G
- H
- Baujahr Objekt:
- 1865
- Endenergiebedarf:
- 324 kWh/(m²a)
- Energieausweis:
- Bedarfsausweis
- Energieeffizienzklasse:
- H
- Energieausweis gültig bis:
- 11.02.2035
- wesentlicher Energieträger:
- Gas
- Baujahr lt. Energieausweis:
- 1976
Ausstattungsbeschreibung:
Zweifamilienhaus mit 2 Wohnungen und einem Grundstück von ca. 764 m²im Herzen von Weinstadt-Endersbach.
Das Haus ist nur noch im Erdgeschoss von 1 Person bewohnt.
Untergeschoss ca.100 m² Nutzfläche
Garage, geräumiger Gewölbekeller, Abstellraum.
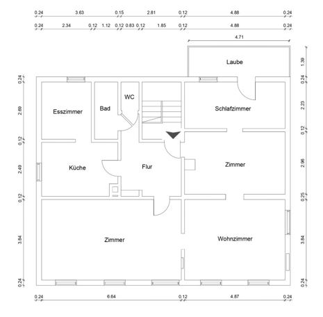
Erdgeschoss ca. 94 m² Wohnfläche
4 Zimmer zzgl. Küche und Bad.
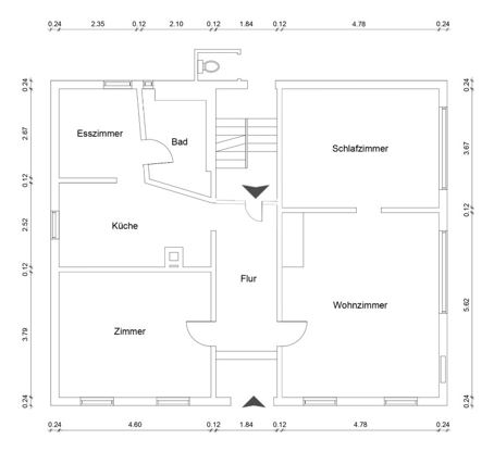
1.Obergeschoss ca.97 m² Wohnfläche
5 Zimmer zzgl. Küche, Bad, separates WC und Balkon.
Dachboden ca. 100 m² Nutzfläche
4 geräumige Abstellräume.
Spitzboden ca. 40 m² Nutzfläche
1 Raum
Sonstige Angaben:
Rechtshinweis:Da wir Objekte nicht selbst ermitteln, übernehmen wir hierfür keine Gewähr.
Sämtliche Angaben in diesem Exposé basieren auf Informationen, die uns vom Eigentümer/Vermieter genannt wurden. Wir bemühen uns, möglichst vollständige und richtige Angaben zu erhalten und weiterzuleiten. Eine Haftung für Richtigkeit und Vollständigkeit können wir jedoch nicht übernehmen.
Sie wollen mehr erfahren?
Wenn Sie uns eine Nachricht über das Kontaktformular senden, melden wir uns schnellstmöglich bei Ihnen:






























