Referenz Maisonette-Wohnung - Miete - Stuttgart

Tolle, helle 3,5-Zimmer-Maisonette Wohnung in Stuttgart-Ost

Stuttgart
Objektart
Wohnung
Objekttyp
Maisonette-Wohnung
Vermarktungsart
Miete
PLZ
70186
Ort
Stuttgart
Zimmer
3,5
Schlafzimmer
2
Badezimmer
1
Anzahl sep. WC
1
Wohnfläche
85 m²
Kaltmiete
1.200 €
Etagenzahl
5
Neubauprojekt
Nein
vermarktungsstatus
Referenz

Beschreibung:

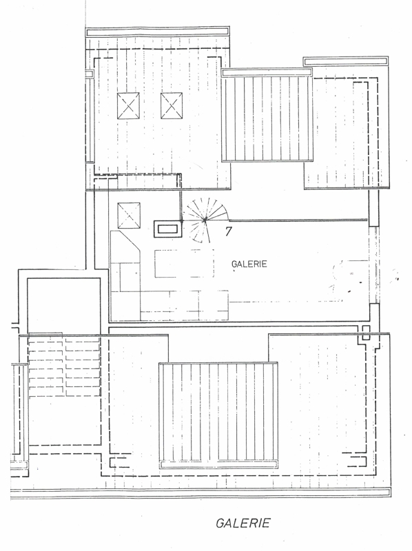
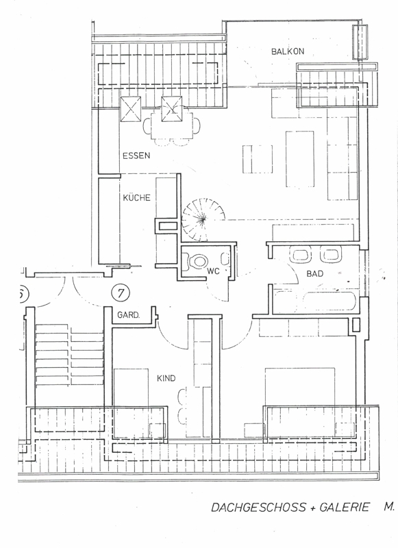
Die zu vermietende 3,5 Zimmer Maisonette Wohnung befindet sich im Dachgeschoß (4.OG) eines gepflegten 8-Familien Haus in Stuttgart-Ost.

Lagebeschreibung:

Ruhige Lage / Sackgasse, zu Fuß 3 Minuten zur U4 und U9

Ausstattung:

Energieausweis:

  • A+
  • A
  • B
  • C
  • D
  • E
  • F
  • G
  • H
0
30
50
75
100
130
160
200
250
>250
Baujahr Objekt:
1983
Endenergiebedarf:
81 kWh/(m²a)
Energieausweis:
Bedarfsausweis
Energieeffizienzklasse:
C
Energieausweis gültig bis:
13.10.2027
wesentlicher Energieträger:
Gas
Baujahr lt. Energieausweis:
1983

Ausstattungsbeschreibung:

+ Heller Wohnbereich mit Zugang zum Balkon
+ Küche ist mit einer EBK incl. Herd (Cerankochfeld), Dunstabzug und Spüle ausgestattet.
+ Bad mit Badewanne, Dusche und Fußbodenheizung.
+ alle Zimmer mit Laminatböden.
+ Balkon mit Markise
+ Galerie
+ Fahrradabstellraum
+ Wasch-Trockenraum
+ Kellerraum.

Sie möchten mehr zu diesem Objekt erfahren? Dann senden Sie uns Ihre Anfrage. Wir stehen Ihnen für Ihre Fragen und einen Besichtigungstermin gerne zur Verfügung.

Sonstige Angaben:

Rechtshinweis:
Da wir Objekte nicht selbst ermitteln, übernehmen wir hierfür keine Gewähr.

Sämtliche Angaben in diesem Exposé basieren auf Informationen, die uns vom Eigentümer/Vermieter genannt wurden. Wir bemühen uns, möglichst vollständige und richtige Angaben zu erhalten und weiterzuleiten. Eine Haftung für Richtigkeit und Vollständigkeit können wir jedoch nicht übernehmen.

Bitte beachten Sie, dass Kontaktanfragen nur beantwortet werden können, wenn Sie uns Ihren vollständigen Namen, Adresse, Telefonnummer und E-Mail-Adresse angeben.

Leider kommt es immer mal wieder vor, dass unsere Nachrichten in Ihrem Spam-Ordner ankommen. Wenn Sie auf eine Antwort von uns warten, dann kontrollieren Sie Ihren Spam-Ordner bitte regelmäßig.

Ute Kärcher
Gewerbeerlaubnis nach § 34 c GewO erteilt am 21.12.2016, Landratsamt Rems-Murr-Kreis, Amt 21, Alter Postplatz 10, 71332 Waiblingen

Jeder RE/MAX Lizenz- oder Franchisenehmer ist ein rechtlich eigenständiges Unternehmen.
Jeder Lizenznehmer ist ein rechtlich eigenständiges Unternehmen und handelt auf eigene Rechnung und Verantwortung.